Kaya Mittwollen

Architektur Portfolio von Kaya Mittwollen.

Casa Verita

Projektübung  |  2021
Betreut durch Dipl.-Ing. Dr.techn. Eva Sollgruber
Zusammenarbeit mit Magdalena Rader

„Das Miethhaus wechselt seine Bewohner und seinen Eigenthümer, wie die Ware ihren Besitzer; es hat keine vertraulichen, man könnte sagen, seelischen Beziehungen zu den Bewohnern. Es muss allen passen, auf Eigenartiges verzichten. Die Bewohner lieben nicht ihr Haus; sie sorgen nur für die von ihnen benutzen Theile desselben.“
– Joseph Stübben, Der Städtebau (1890), Braunschweig 1980, S.16

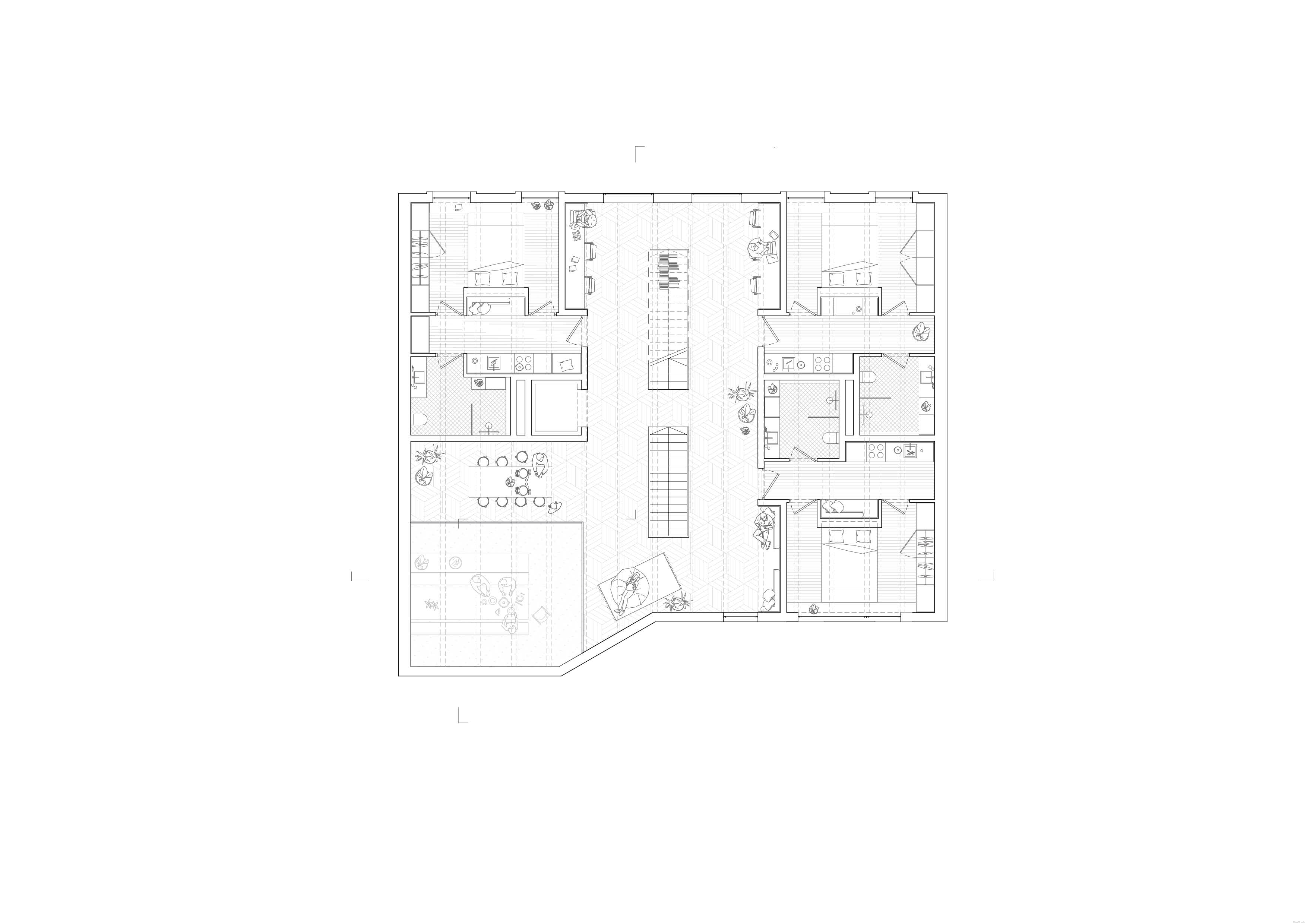
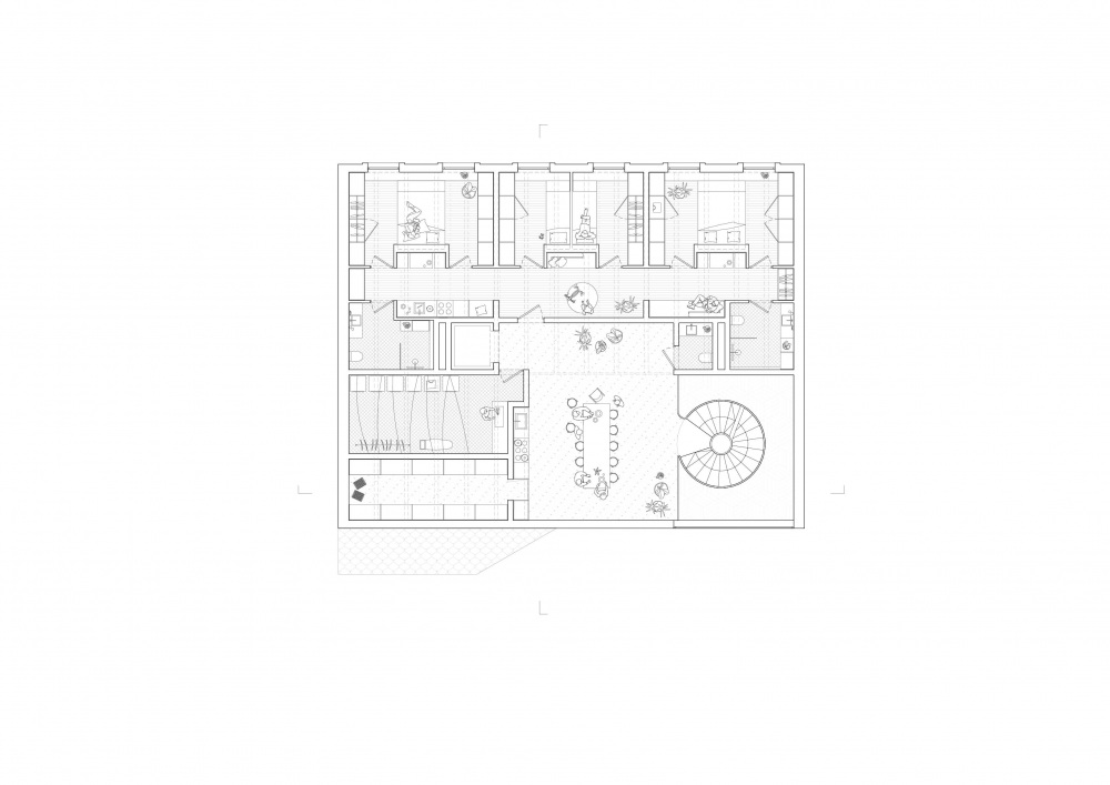
In Zeiten des Wohnungsmangels und der Nachverdichtung ist die Thematik des städtischen Wohnens so diskutiert wie nie zu vor. Es scheint als gäbe es nur zweit Typologien des Wohnens, zum einen das heimische Einfamilienhaus und zum anderen der anonyme Geschosswohnungsbau. 
Wie können wir heute städtischen Wohnraum schaffen, der ein ‘Zuhause‘ wird ohne ein Einfamilienhaus zu sein?
Wo hört das Gemeinschaftliche auf, wo fängt das Private an und wie kann die Architektur an einem konkreten Ort Antworten auf diese Fragen finden? 
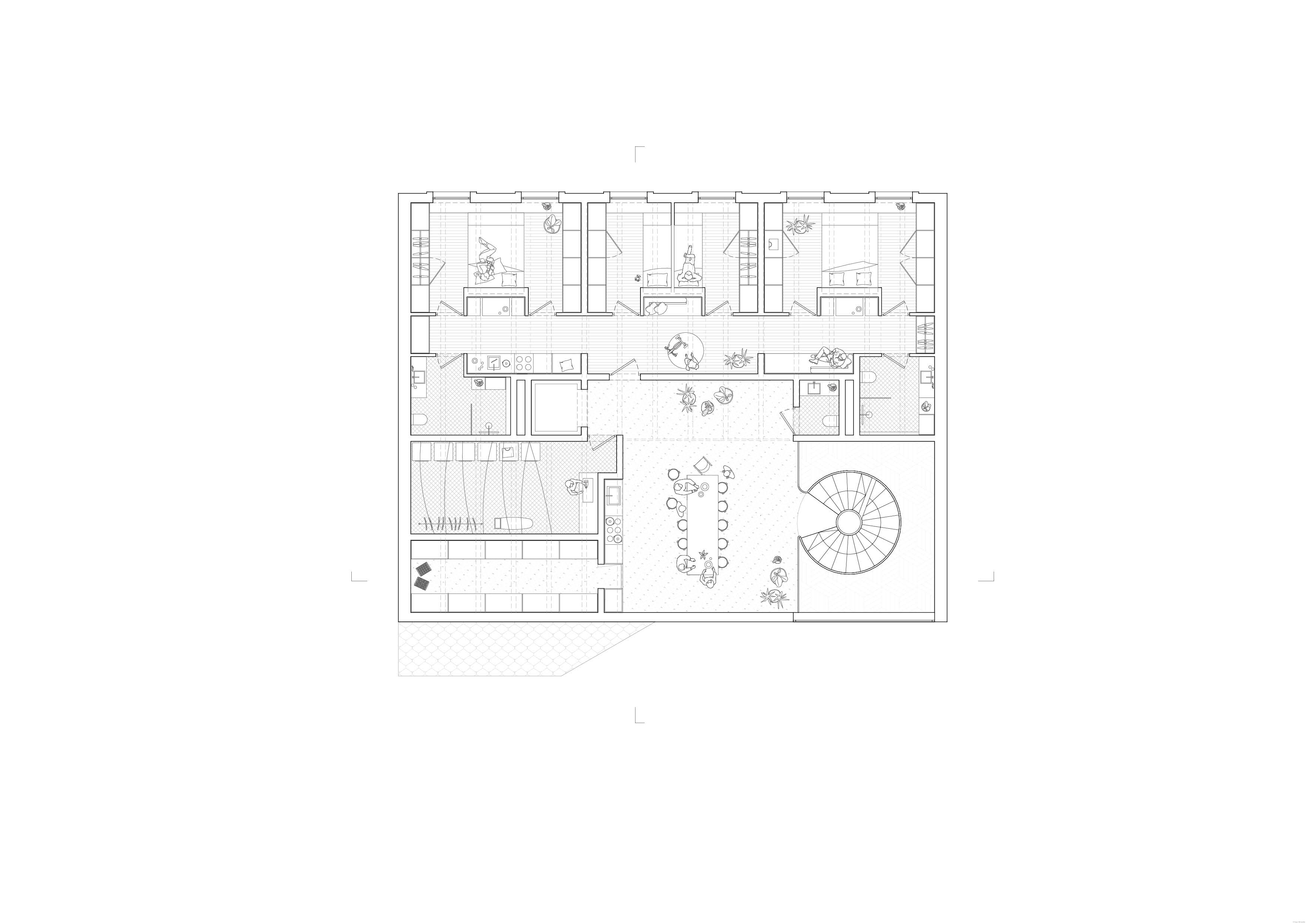
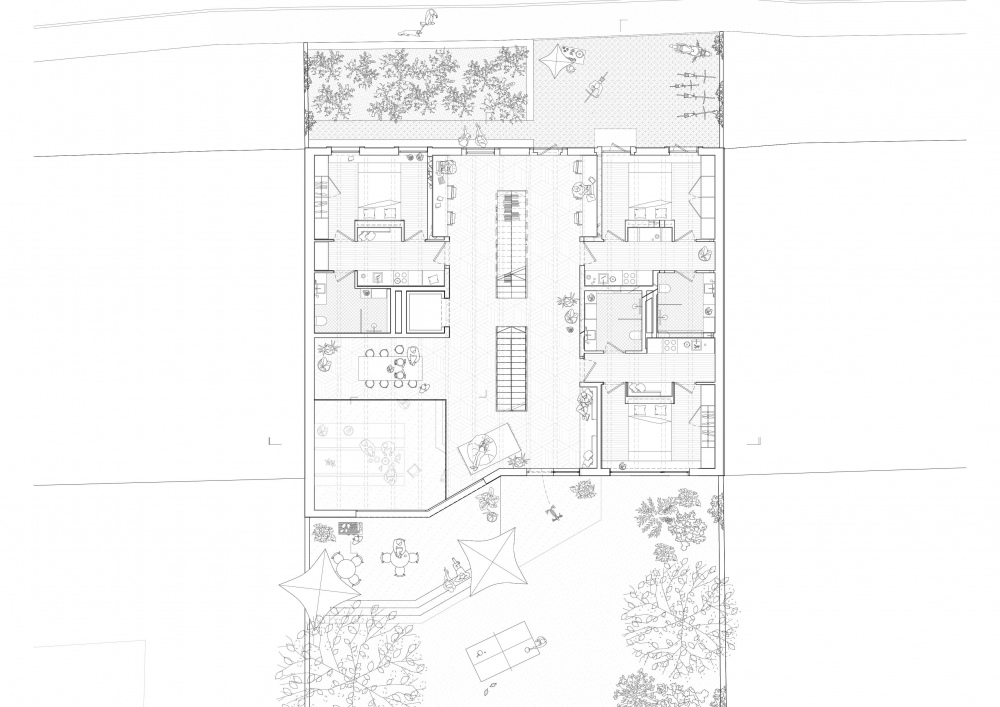
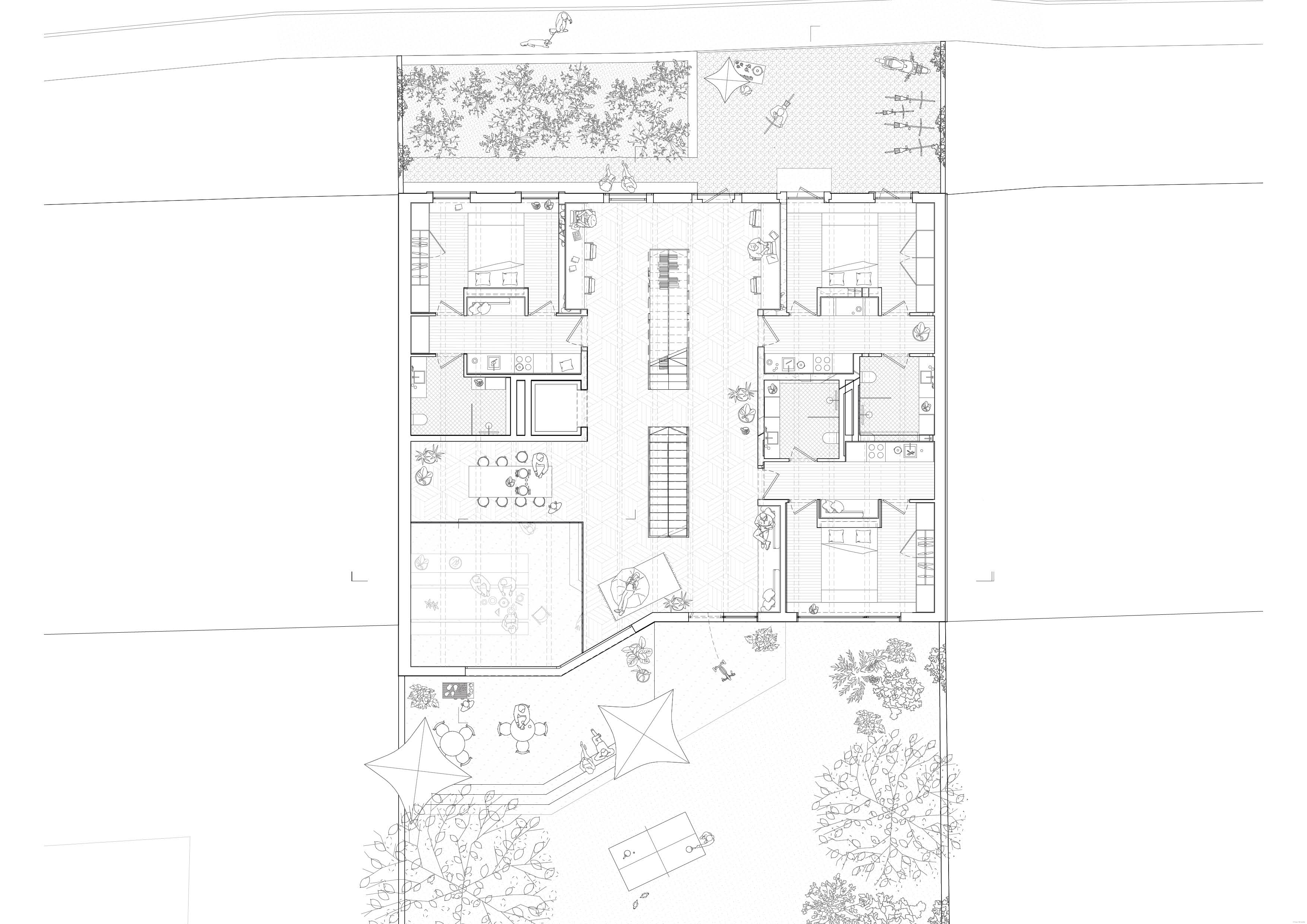
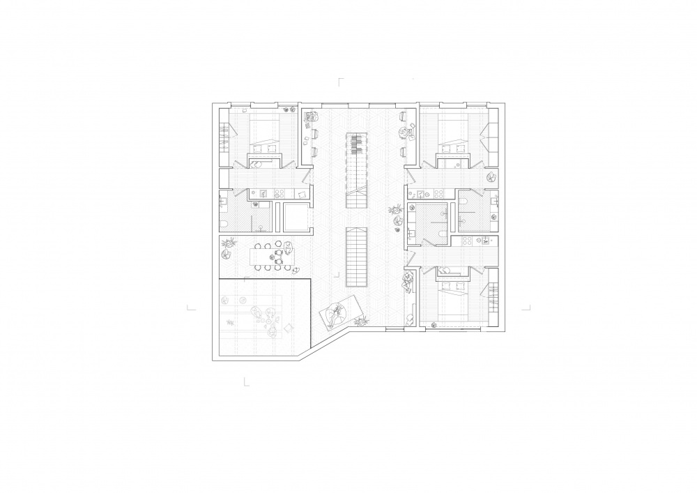
Dieser Entwurf setzt sich mit dem Thema eines ‘EigenArtigen‘ Wohnbaus auseinander. Es werden Möglichkeiten und Unmöglichkeiten von gemeinschaftlichem Leben erarbeitet und am konkreten Beispiel eines Wohnprojektes aufgezeigt. In einer Baulücke im Zentrum von Graz soll ein Wohnhaus entstehen, in der eine Gemeinschaft ein Zuhause findet. Eine Wohngemeinschaft, die einer WG ähnelt aber keine ist, die einem Mehrgenerationenhaus ähnelt aber auch das nicht ist und trotzdem sollen hier alt und jung zusammen leben. Dabei ist ein wichtiger Aspekt die Gemeinschaft so stark wie möglich herauszuarbeiten und für alle Bedürfnisse Raum zu schaffen. Auf fünf Geschossen entsteht eine Struktur, die durch einen großzügigen gemeinschaftlichen Bereich geprägt ist und durch sher klein gehaltene Private Bereiche ergänzt wird. Der Entwurf soll dazu anregen über alternative Wohnformen nachzudenken und die Typologie Wohnung neu zu definieren.